Комплекс от 8 еднофамилни къщи
КОД: ta-34







Нов комплекс от къщи край Варна – вашето бъдещо място за дом и спокойствие край морето!
Представяме ви отлична възможност да изберете своя дом в новостроящ се затворен комплекс с 8 еднотипни къщи, разположен в живописната и тиха зона с.о. Ракитника, на територията на град Варна, само 16 км от центъра на града.
Локацията е изключително удобна – на около 300 м от главния път и спирка на градски транспорт, което осигурява лесна и бърза връзка с града, както с автомобил, така и с обществен транспорт.
На няколко минути от плажовете“ Форест Бийч“ и “Фичоза“, районът разполага и с екопътеки.
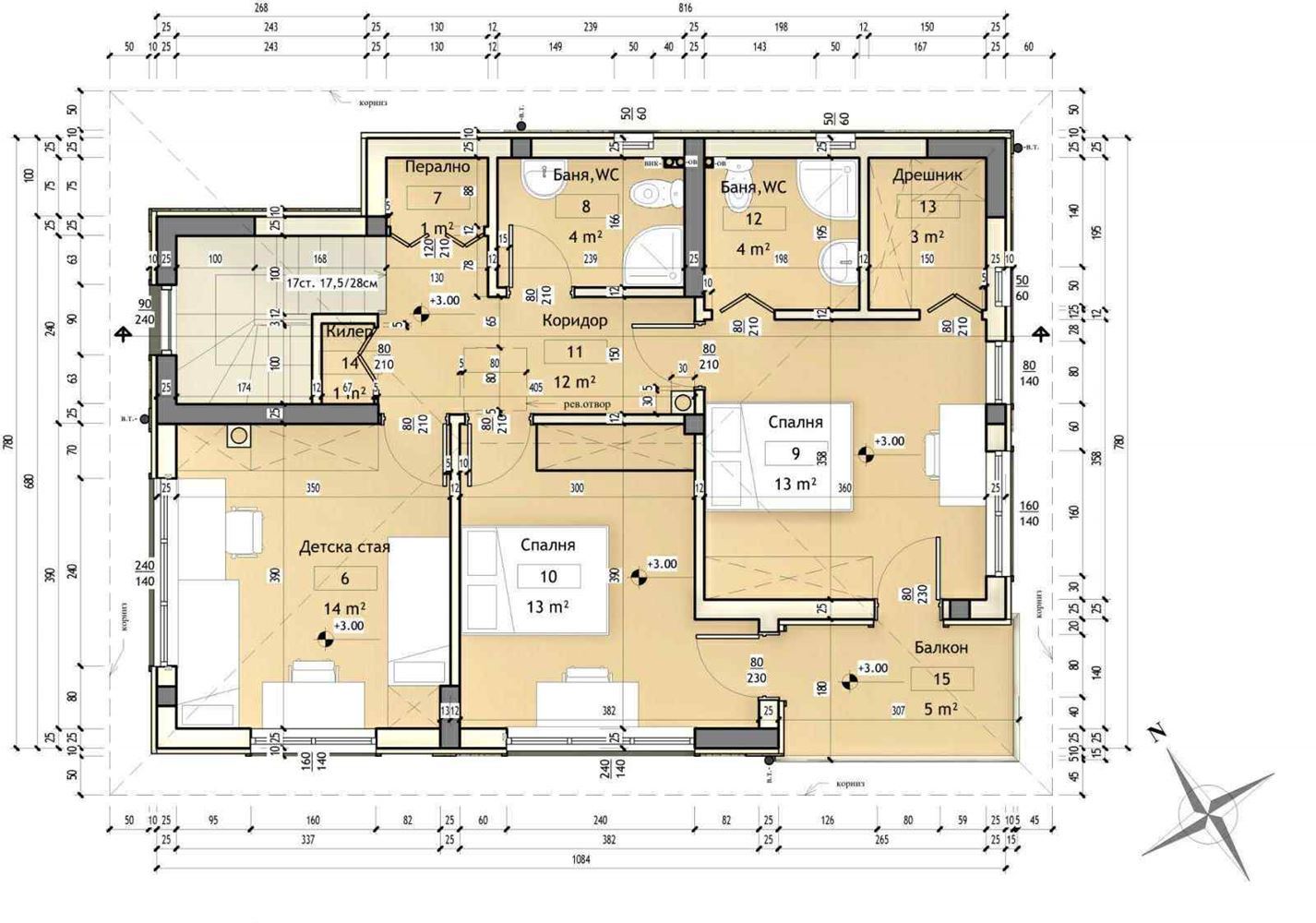
Къщите имат следното разпределение
Първи етаж:
- Просторно антре
- Светла дневна с кухненска част
- Кабинет (идеален за хоум офис)
- Баня с тоалетна
Втори етаж:
- Коридор
- Детска стая
- Две спални с общ балкон
- Една от спалните със собствена баня, тоалетна и гардеробна
- Перално помещение
- Още една баня с тоалетна
Екстри и удобства:
- Всеки имот разполага със самостоятелен двор
- 2 паркоместа към всяка къща
- 4 от имотите са със самостоятелен вход от улицата, а другите 4 – с достъп през общ портал
- Без месечни такси за поддръжка!
Строителството започва: 01.11.2025 г.
- Къщите ще се предават по БДС, с възможност за завършване „до ключ“ по избор на клиента
- Гъвкави схеми на плащане, съобразени с напредъка на строителството.
- Цена на еднофамилна къща 265 000 евро.
Ипотечен калкулатор
години € 265000 сума
Ипотечния калкулатор изчисява месечната вноска при 80% финансиране от стойността на имота за срок от 25 години при лихва 2.19%. Размерът на лихвата търпи промени в зависимост от годините на изплащане и финансовия статус на кредитополучателя.
Кредитната услуга се предоставя от нашия партньор “Кредит Център”
Прочетете почвече за кредитиранетоЗаявете оглед
Данни за обратна връзка
Безплатно е и без ангажименти.
Можете да го отмените по всяко време.
Ще се свържем с Вас за потвърждение на срещата. Благодарим за доверието!